快捷搜索:  as  鹌鹑  xxx  小龙虾  养狗  水蛭  锟斤拷锟斤拷  楣岄箲

砸掉三堵墙,我救活了这套四叶草奇葩户型!

砸掉三堵墙,我救活了这套四叶草奇葩户型!

砸掉三堵墙,我救活了这套四叶草奇葩户型!

砸掉三堵墙,我救活了这套四叶草奇葩户型!

砸掉三堵墙,我救活了这套四叶草奇葩户型!

砸掉三堵墙,我救活了这套四叶草奇葩户型!

砸掉三堵墙,我救活了这套四叶草奇葩户型!

砸掉三堵墙,我救活了这套四叶草奇葩户型!

砸掉三堵墙,我救活了这套四叶草奇葩户型!

砸掉三堵墙,我救活了这套四叶草奇葩户型!

砸掉三堵墙,我救活了这套四叶草奇葩户型!

砸掉三堵墙,我救活了这套四叶草奇葩户型!

砸掉三堵墙,我救活了这套四叶草奇葩户型!

砸掉三堵墙,我救活了这套四叶草奇葩户型!

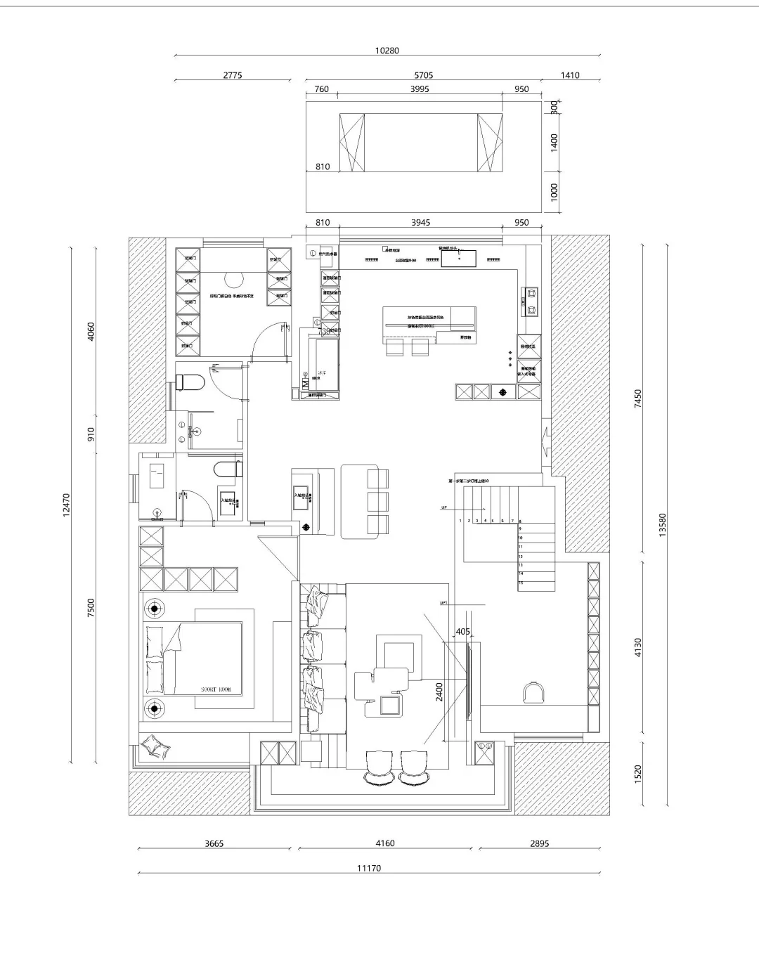
都说四叶草户型是‘奇葩’,房间像孤岛,互相不搭理。直到我狠心砸掉三堵墙,才明白什么叫“通透”和“互动”,这个家终于被救活了!

1、砸掉客厅半墙 → 打造开放式电竞房
2、砸掉厨房墙 → 打造拥有2米长大岛台的开放式厨房
3、改造客卫,新建一堵墙 → 干湿分离+独立洗手台
最后放了我家的平面图仅供参考哦


所以,如果你家也是看似“鸡肋”的四叶草户型,别犹豫,大胆地去改造吧!核心思路就是——打破隔阂,让空间为你服务,而不是被墙体束缚。
#换个角度看我家 #小户型显大设计 #家居新趋势 #每个家都值得用心 #装修新手村 #无滤镜的家 #跟着小红书学装修 #装修人来抄作业 #小户型装修
养羊网

您可能还会对下面的文章感兴趣111: