纠缠的农业 Agriculture of Entanglement
纠缠的农业 Agriculture of Entanglement






纠缠的农业 \"是一个设计研究项目,它不仅关注食物的生产,还关注人类和非人类如何在生产性的共生中走到一起,以使我们目前的轨迹走向可持续的未来。
处理这个问题的紧迫性似乎更加明显。工业化生产[不仅是食品]已经使消费者与最终产品疏远,并使社会对提供他们日常饮食的破碎系统没有兴趣。因此,消费者要求政治变革的潜在力量仍未得到利用。
这个项目的出发点是我在法罗群岛宰羊的亲身经历,以及在那里可以学到的关于未来多物种共存的经验教训。该项目的动机是探索一种介于那些技术官僚[主张模糊和完全自动化的农业]和技术批评家[梦想小规模的社区重点食品生产]之间的立场,这似乎主导了当前的讨论。
该项目不是试图为一个不连续的问题找到具体的解决方案,而是对一个领域的探索。它包含批判性的写作、命题性的思考和试图伸向现实世界的触角,试图以各种不同的方式改变我们生产食物的方式。
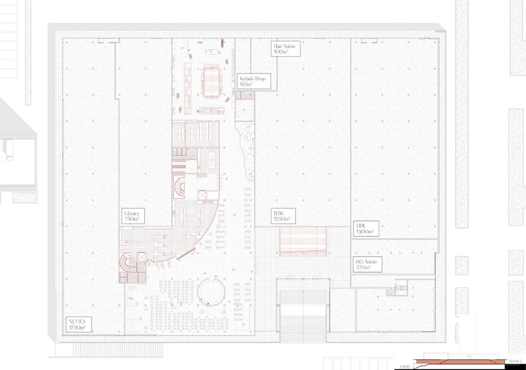
该项目的一个探索是把一个商场变成一个农业生产的空间的提议。在这里,一些理论性的想法在一个具体的例子中得到了检验。与其说这个例子是一个宏大的解决方案,不如说是一个干巴巴的平庸,但它可能指向一个建筑上不起眼的中心的生物政治学的范式转变。它汇集了一些合理的建筑操作和另一种商业模式,形成了一个可能真的能够改变食品生产的处置方式的故障。
??Jan Gerits
#建筑设计 #作品集 #留学美国
处理这个问题的紧迫性似乎更加明显。工业化生产[不仅是食品]已经使消费者与最终产品疏远,并使社会对提供他们日常饮食的破碎系统没有兴趣。因此,消费者要求政治变革的潜在力量仍未得到利用。
这个项目的出发点是我在法罗群岛宰羊的亲身经历,以及在那里可以学到的关于未来多物种共存的经验教训。该项目的动机是探索一种介于那些技术官僚[主张模糊和完全自动化的农业]和技术批评家[梦想小规模的社区重点食品生产]之间的立场,这似乎主导了当前的讨论。
该项目不是试图为一个不连续的问题找到具体的解决方案,而是对一个领域的探索。它包含批判性的写作、命题性的思考和试图伸向现实世界的触角,试图以各种不同的方式改变我们生产食物的方式。
该项目的一个探索是把一个商场变成一个农业生产的空间的提议。在这里,一些理论性的想法在一个具体的例子中得到了检验。与其说这个例子是一个宏大的解决方案,不如说是一个干巴巴的平庸,但它可能指向一个建筑上不起眼的中心的生物政治学的范式转变。它汇集了一些合理的建筑操作和另一种商业模式,形成了一个可能真的能够改变食品生产的处置方式的故障。
??Jan Gerits
#建筑设计 #作品集 #留学美国

